top of page
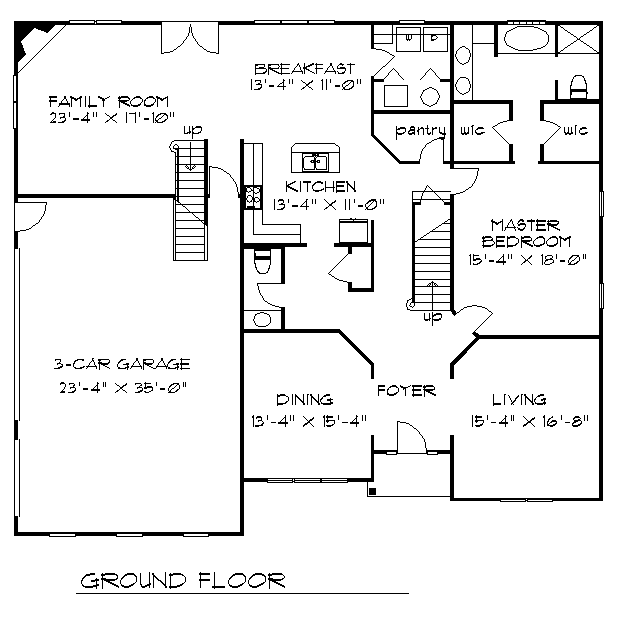
THE MILLER

3,579 SQ. FT. 

2-STORY PLAN

3 OR 4-BEDROOM

MASTER DOWN

SIDE ENTRY GARAGE

60'W. X 60'D.

leahomeplans 2017

  • LinkedIn Social Icon
  • Houzz Social Icon
  • Twitter Round
bottom of page